La salle de classe et les espaces collaboratifs
Tant au Québec qu’au Canada, de façon générale, la typologie des écoles primaires a très peu évolué au cours des cent dernières années. Le modèle dominant continue de ranger des salles de classe rectangulaires le long de corridors rectilignes. Pourtant, au cours du 20e siècle, de nombreux architectes de par le monde ont proposé bien d’autres configurations.
Les importants changements sociaux, culturels et technologiques des vingt dernières années nécessitent désormais de repenser l’architecture des écoles primaires et tout particulièrement les espaces dédiés à l’enseignement et aux apprentissages. Récemment, des projets d’école novateurs ont été largement diffusés dans les médias, comme l’école de Sydhavnen au Danemark (JJW Architects, 2015) et l’école Saunalahti en Finlande (Verstas Architects, 2012). Ces nouvelles conceptions d’espaces d’apprentissage ont le mérite de soulever d’importantes questions : La salle de classe, en tant que forme archétypale de l’école, est-elle toujours d’actualité? Quelles configurations spatiales permettent la plus grande diversité d’approches pédagogiques? Quelles stratégies architecturales seraient plus adaptées au contexte québécois?
« Le Lab-École a élaboré […] des programmes architecturaux ingénieux [qui] sans éliminer la typologie de la salle de classe, proposent de la repenser grâce à l’ajout d’espaces collaboratifs partagés par plusieurs classes. »
Les modèles alternatifs construits, éprouvés et reconnus ne manquent pas, qu’il s’agisse de l’école Crow Island aux États-Unis (des architectes Eliel et Eero Saarinen, en 1940), de l’école Geschwister-Scholl en Allemagne (de l’architecte Hans Scharoun, en 1956), de l’école Montessori de Delft aux Pays-Bas (de l’architecte Herman Hertzberger, en 1960), ou encore de l’école Strawberry Vale au Canada (des architectes John et Patricia Patkau, en 1995).
Les nouveaux modèles mis de l’avant depuis quelques années, tant en Nouvelle-Zélande, en Australie, au Danemark qu’en Finlande, mettent l’accent sur des écoles primaires sans salles de classe. Des études récentes montrent pourtant que les écoles sans classes génèrent un niveau de bruit et de distraction visuelle plus élevé : autant de nuisances qui compliquent l’enseignement et les apprentissages (Benade, 2017; Gislason, 2015; Mealings, 2015). Pour certains chercheurs, l’abandon total des salles de classe va même jusqu’à accroître la confusion et la perte de repères spatiaux pour les enfants d’âge primaire (Chapman, 2014).
Le Lab-École a élaboré les programmes des cinq concours en étroite collaboration avec les représentants des milieux concernés. Préliminaire au concours, ce travail de concertation a mené à la rédaction de programmes architecturaux ingénieux en termes de superficies et de planification des espaces. Sans éliminer la typologie de la salle de classe, ces programmes proposent de la repenser grâce à l’ajout d’espaces collaboratifs partagés par plusieurs classes. Cette approche québécoise originale offre un équilibre entre des espaces fermés et des espaces ouverts qui pourraient inspirer d’autres contextes culturels et urbains.

Les programmes incluent des salles de classe de 60 à 65 m2 pour le primaire et de 70 à 80 m2 pour le préscolaire, auxquelles s’ajoutent des espaces de collaboration et de concentration partagés par les classes d’un même cycle d’études ainsi que des aires de circulation habitées propices aux apprentissages et à la socialisation. Dans les cinq concours, les architectes sont invités à s’inspirer des idées et des maquettes conceptuelles développées par le Lab-École, dont « la classe en forme de L », « l’entre-deux », « la placette », « la rue d’apprentissage », « la communauté d’apprentissage » et le modèle pavillonnaire », qui ont été publiées dans l’ouvrage Penser l’école de demain en mars 2019.
L’axe thématique La salle de classe et les espaces collaboratifs présente les différents dispositifs physiques et spatiaux imaginés par les architectes pour repenser les espaces dédiés à l’enseignement et aux apprentissages.
16 salles de classe (12 × 60 m2 + 4 × 75 m2) + espaces de concentration (6 × 4 m2) + espaces de collaboration (3 × 60 m2) espaces d’apaisement (4 × 4 m2).
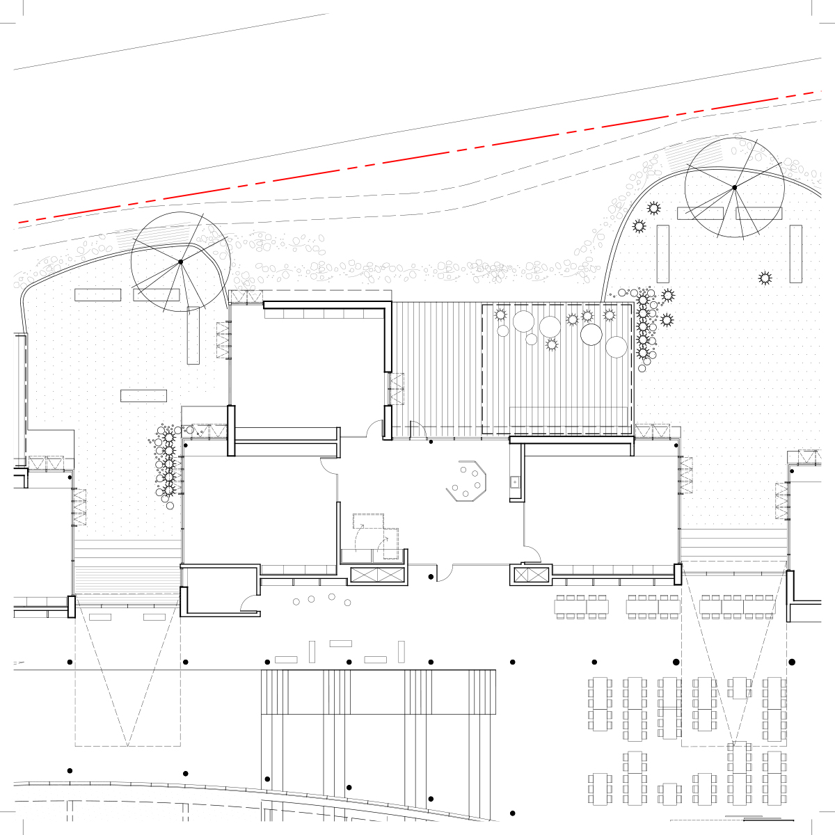
Les classes devront être regroupées dans trois pavillons distincts, reliés par des passerelles. Chaque cycle sera dans un pavillon, sauf le premier cycle, qui sera regroupé avec les classes préscolaires. Pouvant accueillir jusqu’à 26 élèves, les classes seront en forme de « L » afin de permettre l’aménagement de plusieurs zones, dont une zone pour la lecture (…) L’espace de collaboration est un espace adjacent aux classes; il constitue le cœur de chaque pavillon, que ce soit une communauté d’apprentissage ou une rue d’apprentissage. Cet espace représente le seuil de chacun des pavillons, après avoir traversé le vestiaire.
Texte extrait du programme architectural du Lab-École
25 salles de classe (17 × 60 m2 + 8 × 70 m2) + espaces de concentration (9 × 5 m2) + espaces de collaboration (4 × 60 m2).
Les classes sont disposées en groupes de quatre qui se partagent des locaux connexes. Cet aménagement permet une plus grande polyvalence dans les types d’activités pédagogiques qui s’y déroulent (…) L’espace de collaboration est adjacent aux classes et aux espaces de concentration; il constitue le coeur de chaque communauté d’apprentissage. Polyvalent, il sert à la fois au service de garde et aux classes, et il est utilisé autant en dehors des heures de classe que pour favoriser le contact entre les classes en étant un prolongement de celles-ci.
Texte extrait du programme architectural du Lab-École
Extrait du programme architectural Lab-École 15 salles de classe (12 × 60 m2 + 3 × 80 m2 incluant services) + espaces de concentration (6 × 4 m2) espaces de collaboration (3 × 60 m2 + 3 cuisinettes de 5 m2) espaces d’apaisement (4 × 4 m2).
Offrir un lieu collaboratif partagé par quatre classes intégrant un sous espace de concentration utilisé également pour la collaboration entre enseignants; Positionner des locaux de concentration connexes aux classes afin de permettre l’observation par des stagiaires en enseignement; Faciliter le travail du personnel en positionnant une ou plusieurs salles d’apaisement près des locaux de classe.
Texte extrait du programme architectural du Lab-École
10 salles de classe (7 × 65 m2 + 3 × 70 m2) espaces de collaboration (3 × 25 m2).
Les classes se greffent à la rue d’apprentissage. Elles doivent être disposées de manière logique selon leur cycle afin de privilégier le partage de tâches entre les enseignants. Pouvant accueillir une vingtaine d’élèves, elles doivent permettre aussi l’aménagement de plusieurs zones. Cet aménagement doit être adaptable, car des activités variées peuvent s’y dérouler.
Texte extrait du programme architectural du Lab-École
34 salles de classe (26 x 65 m2 + 8 x 75 m2) + espaces de concentration (4 x 5 m2) + espaces de collaboration (4 x 65 m2).
Aménager l’ensemble des classes en forme de « L » avec un sous-espace réservé à la bibliothèque et à la lecture; Proposer un aménagement polyvalent pour les classes qui favorise la collaboration entre les enseignants; Favoriser le prolongement des espaces d’apprentissage vers l’extérieur; Regrouper les lieux d’apprentissage par cycle afin de favoriser les possibilités de collaboration entre les classes; Aménager des espaces de concentration, partagés entre deux classes. »
Texte extrait du programme architectural du Lab-École
Texte et recherche réalisé par Jean-Pierre Chupin, commissaire et Alexandra Paré, professeure du primaire et doctorante en architecture.









































